ビル・マンションオーナーの皆様へ

閉じる お問い合わせはこちら

MENU

お問い合わせはこちら

Project

江戸堀2丁目

Overview

市内中心部のファミリー層向け賃貸マンションの改修事例です。入居者の退去ごとに専有部リノベーションを実施しています。これまでに5戸の改修が完了しており、改修後の物件はいずれも満室となっています。今後ファサードやエントランスのリノベーション、専有部のサッシ更新といった機能向上リノベーションを計画しております。
今後共有部の改修などを視野に入れています。
*こちらの物件は実際にご覧いただけます。

所有形態

一棟所有

竣工年

1986年

所在地

大阪市西区

構造規模

SRC造 地上11階建 / 44戸

大規模改修(主にメンテナンス)、エレベータ更新

居室1室(Type1)改修完了

居室1室(Type1)改修完了

居室4室(Type1)改修完了

居室4室(Type1)改修完了

居室1室(Type2)改修完了

居室1室(Type2)改修完了
2017
2022
2024
2025

Overview

市内中心部のファミリー層向け賃貸マンションの改修事例です。入居者の退去ごとに専有部リノベーションを実施しています。これまでに5戸の改修が完了しており、改修後の物件はいずれも満室となっています。今後ファサードやエントランスのリノベーション、専有部のサッシ更新といった機能向上リノベーションを計画しております。
今後共有部の改修などを視野に入れています。
*こちらの物件は実際にご覧いただけます。

所有形態

一棟所有

竣工年

1986年

所在地

大阪市西区

構造規模

SRC造 地上11階建 / 44戸

江戸堀2丁目

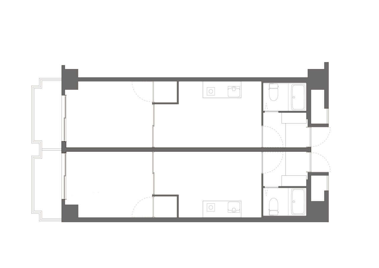
Type1

内外の境界線が曖昧な空間がもたらす新たな可能性

Type1

S、M、Lと大きさの異なる居室を回遊するような設計は、寝室、ダイニング、書斎など機能を限定しない使い方を促します。窓際のインナーバルコニーは植栽を置いたり、アウトドアチェアを置くなど半屋外の様に活用できます。

形式:専有部リノベーション / Type1
平米数:53.51㎡
竣工:2022年12月
設計パートナー:graf

江戸堀2丁目

Type2

高低差、素材、天井など空間のディテールが内側の景色を豊かにする

Type2

単身者向けのワンルームマンションを2つ繋げ1つの空間にすることで多人数世帯への対応を可能に。空室分の解消を図るとともに、水まわりも1箇所に集約させることでメンテナンス性を高めるプランです。限られた住戸スケールの中に高低差、素材、天井などの空間のディテールに加えベンチやシェルフに至るまで住み手への細やかな配慮を施し、可変性の余白と快適性を高めています。

形式:専有部リノベーション / Type2
平米数:52.5㎡
竣工:2025年4月
設計パートナー:graf

(  About this page  )

市内中心部のファミリー層向け賃貸マンションの改修事例です。入居者の退去ごとに専有部リノベーションを実施しています。これまでに5戸の改修が完了しており、改修後の物件はいずれも満室となっています。賃料は改修前に比べて21〜25%上昇しており、収益性が大きく向上ました。今後共有部の改修などを視野に入れています。

FAQ

よくあるご質問

みなさまから日頃よく寄せられるご質問を
Q&A形式でご紹介しています。

大規模修繕工事とは何ですか? なぜ必要ですか?

マンションを適切に維持し、快適な居住環境と資産価値を保つためには、保守点検と修繕が重要です。修繕には性能・機能の劣化の度に行う小修繕と、一定年数の経過ごとに計画的に行う計画修繕があります。小修繕は定期的な点検により、設備の異常を早期発見し劣化した部分を修理・交換して性能・機能を回復させます。計画修繕は予め設定した長期修繕計画に基づき、工事前に調査・診断を行い、建物各部の傷み具合に対応した有効な修繕設計を行い工事内容を確定します。計画修繕では、工事の効率性を高めるため、複数項目をまとめて実施するケースが多く、12~15 年程度の周期で実施することが一般的です。

メンテナンスとリノベーション(改良)の違いがよくわかりません

住環境の向上を目的とする工事を「リノベーション(改良)」と呼び、メンテナンス(改修)とリノベーションを組み合わせ建物全体の性能を改善する工事を「改修工事」と定義されています。高経年のマンションの質と価値を最適に保持するためには、修繕による性能の回復だけでなく、居住者の現在の生活水準に見合った性能向上、すなわちリノベーション(グレードアップ)が必要です。「改修工事」を適切に実施することで、建物の物理的老朽化だけでなく居住環境の陳腐化を抑制できます。

修繕計画は必要ですか?

マンションをできるだけ長く適切に維持管理していくために修繕計画は必要です。点検・検査・診断により、建物の経年による劣化状況等の不具合や問題点を明らかにし、具体的な修繕実施のための中短期計画を作成、実績を見ながら目安として5年ごとに長期修繕計画を見直していく必要があります。

大規模修繕工事やリノベーションはおよそ築何年で実施しますか?何回くらい必要ですか?

建物の状況にもよりますが、15年〜20年程度で実施することを推奨します。築30年を超えると、居住環境の魅力や価値が低下し、時代に合わなくなるケースが多いので2回目はメンテナンスとリノベーションを同時実施が効率も良く効果的です。計画的にメンテナンスを同程度のピッチで実施し、長寿命化を図ります。
※国交省の推奨は12年~15年毎

どれくらいの費用がかかりますか?

建物の規模や状況、劣化具合で異なりますが、国交省のデータによると工事回数別の工事金額は4千万円~6千万円(1回目)の割合が最も多く、2回目及び3回目は6千万円~8千万円の割合が最も高くなります。(税抜、共通仮設費は含みません)

Contact by E-mail

見積依頼や詳しいご相談をされたい方、
ビル・マンションのリノベーションのお悩みは
何でもお聞かせください

無料相談はこちらから

Catalogue Download

ビル・マンションオーナーの皆様へ
お問い合わせはこちら

お問い合わせはこちら

Contact by E-mail

見積依頼や詳しいご相談をされたい方、
ビル・マンションのリノベーションのお悩みは
何でもお聞かせください

無料相談はこちらから

Catalogue Download

ビル・マンションオーナーの皆様へ
お問い合わせはこちらはこちら

お問い合わせはこちらはこちら